

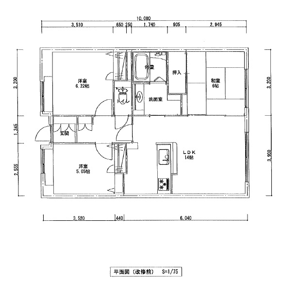
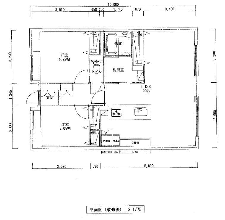
今回のリフォームは、八幡西区マンションのご紹介です。キッチンの設置位置変更・和室をLDKへ変更したいという間取り変更の要望に答え施工しました。
























3LDKの間取りを2LDKに変更し、リビングはとても広く明るく落ち着いた空間に仕上げました。
玄関は玄関収納と横にあった収納の扉を新調し、建具は全て新調しました。お客様のご希望で色はホワイト仕様にしてリビングドアだけブラックにしましたが、シックでとても素敵に仕上がりました。
玄関左右の洋室も建具は全て新調し、床はフロアタイルを上貼りし、クロスは貼り替えることでとてもイメージが変わりました。
トイレはLIXILのJフィットを新設し、手洗器がつき両サイドは収納もでき、上段にはキャビネットも新調し、収納豊富のトイレに変身しました。
洗面化粧台はリフォーム前、1200㎜の洗面台と300㎜のトールキャビネット仕様でしたが、900㎜の洗面台化粧台に変更し300㎜トールキャビネットを左右に新調し、トイレ同様収納豊富となりました。写真には写っていませんが洗濯機置上段に可動棚を設置しております。
浴室はPanasonicのマンションリノベーション/バスルームMR1317の仕様にしました。ゆっくりと入浴できますね。
キッチンは元々あった位置を変更(間取図参照)し、ペニンシュラ型を新調し、カップボードを新設しました。IHクッキングヒーターはお客様のご要望でPanasonicのトリプルワイド仕様にしました。とても使いやすそうですね。
和室を洋室に変更することで、リビングと一体化させとても広いリビングになりました。
今回のリフォームは、すべてのサッシにLIXILのインプラスを設置し、気密性・断熱性・遮音性に優れ、夏は涼しく冬は暖かく過ごせますね!
リフォーム・リノベーションのことなら、株式会社レアリードにお気軽にご相談下さい。
皆様からのご来店、お問合せスタッフ一同心よりお待ちしております。
株式会社レアリード【TEL093-562-0080】
コメント